Pwodwi Entwodiksyon
GB Crane Rails vini nan kat espesifikasyon: QU7 0, Qu80, Qu100, ak Qu120. GNEE Rail entèdi swiv estanda nasyonal nan pwosesis manifakti ak estanda kalite asire pwodwi fyab ak estabilite. Pandan pwosesis pwodiksyon an, konpozisyon chimik la ak pwopriyete mekanik ray yo entèdi pou asire ke endikatè tankou kontni kabòn ak kontni Manganèz satisfè kondisyon yo. Sifas la ak presizyon jewometrik dimansyon nan ray nan espesifikasyon divès kalite yo entèdi kontwole. Inegalite nan sifas la tren QU70 pa depase 0.3mm\/m, asire operasyon an lis nan ti ekipman leve; Anba a lou-Haul Crane tren gen yon zòn kontak pi gwo ak fondasyon an, ak nan teknoloji egzak pwosesis, li asire ke li adapte kole kole ak fondasyon an ak amelyore estabilite an jeneral. An menm tan an, ray nan espesifikasyon divès sibi strik deteksyon defo anvan yo kite faktori a elimine domaj entèn yo epi yo bay itilizatè yo ak pwodwi tren ki an sekirite ak serye.

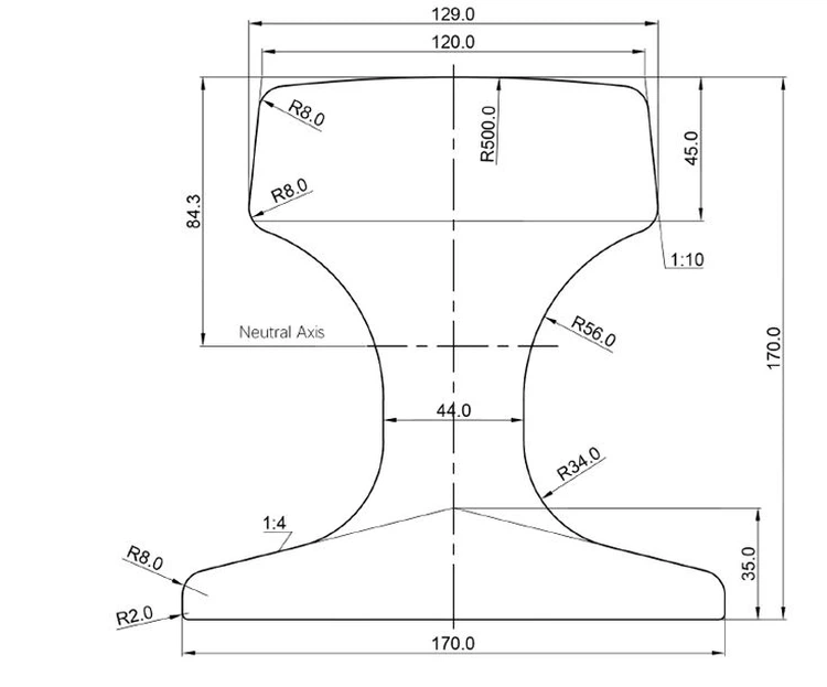
QU120 lou-devwa teknik tras se yon tras souvan itilize pou gwo lou-devwa trepye. Li gen yon gwo gwosè kwa-rejyonal ak yon pwa pou chak mèt, ki ka satisfè bezwen yo nan trepye gwo leve objè lou. Li se sitou itilize pou mete tras nan trepye pòtay, trepye pon ak lòt ekipman nan gwo plant endistriyèl, pò ak waf, min ak lòt kote. Pou egzanp, gwo trepye loading ak dechaje resipyan nan pò ak waf bezwen souvan leve objè lou sou track la. Lou-Haul Crane Rail ka bay sipò ki estab ak konsèy asire operasyon an ki an sekirite nan teknik la.

Espesifikasyon pwodwi yo

GNEE Rail konsantre sou sèvis Customized pou GB estanda Crane ray ak ka bay solisyon pèsonalize dapre bezwen espesyal kliyan yo. Nou gen gwo kapasite teknik R&D ak eksperyans pwodiksyon rich pou satisfè divès bezwen ki pa estanda.
Dimansyon sèvis Customized gen ladan:
● Pèrsonalizasyon gwosè espesyal
● Pèrsonalizasyon materyèl espesyal
● Kondisyon pèfòmans espesyal
● Kondisyon anbalaj espesyal
Avantaj nou yo:
● Sistèm pwodiksyon fleksib
● kapasite repons rapid
● Sipò teknik pwofesyonèl
● Strik kontwòl kalite







Baj popilè: QU120 lou-Haul Crane Rail, Lachin QU120 Heavy-Haul Crane Rail manifaktirè, Swèd, faktori






